

Faction Bike
Rénovation & aménagement de locaux
Lieu
Dimensions
Année
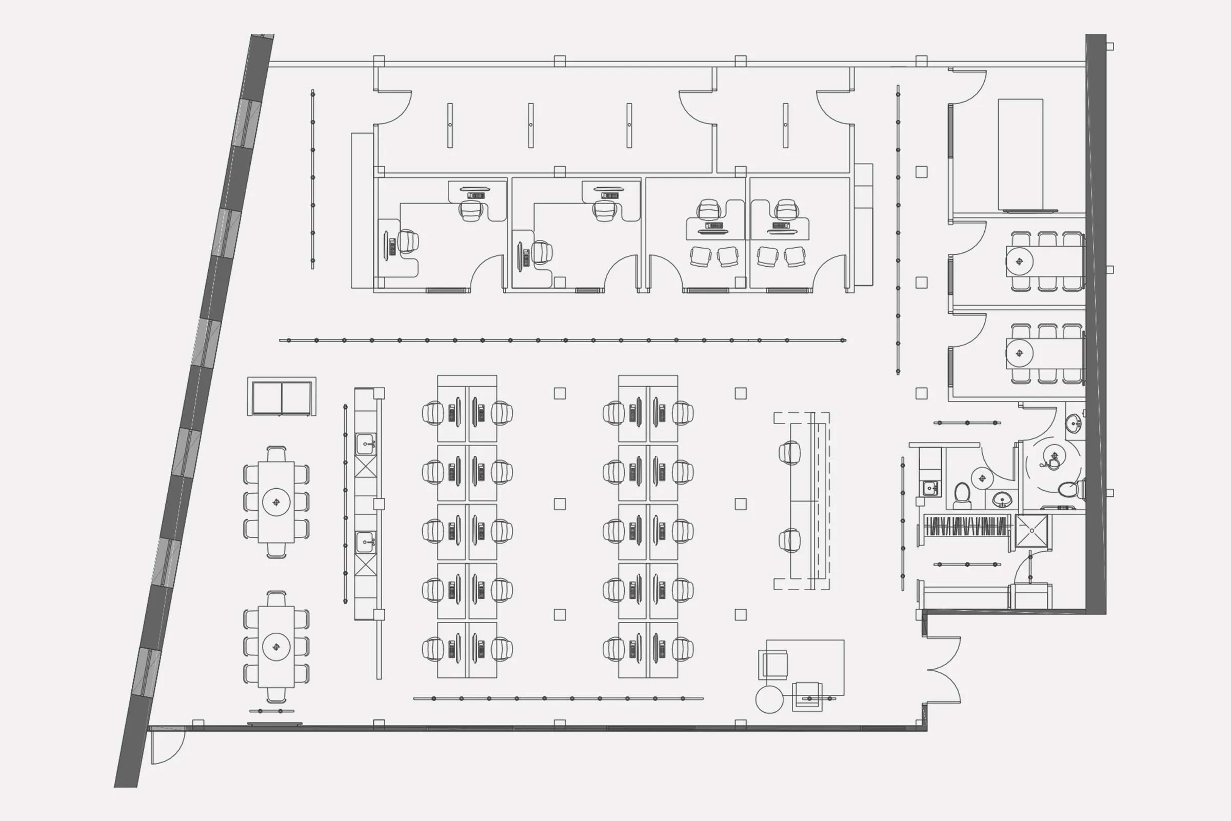
Pour ce projet, Marron Design a accompagné Faction Bike Studio dans la rénovation d’un vaste local industriel de 4600 pi², afin de créer un espace à la fois créatif, lumineux et hautement fonctionnel. L’objectif était de mettre en valeur l’architecture existante, de favoriser la lumière naturelle et d’aménager un environnement de travail ouvert, tout en conservant une certaine intimité.
La réception, les zones de travail, la cafétéria commune, le coin barista, la salle de conférence et les vestiaires ont été soigneusement pensés pour refléter l’identité innovante de l’entreprise, tout en répondant aux besoins quotidiens des employés. Avec des plafonds hauts typiques d’une usine ancienne, le défi consistait à maîtriser l’effet d’écho et à humaniser l’espace pour offrir un lieu chaleureux et inspirant, en lien avec la passion de Faction Bike Studio pour le design et la performance.














